

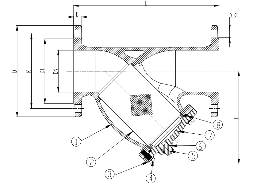
Y type Strainer is the filtration equipment which is to prevent impurities in the flow media from flowing into the back-end equipment. The strainer is usually being installed before the Water.
Features:
?- Face to face: DIN3202-F1 / BS 2080
?- Flanges: BS4504 / EN 1092-2 PN10/16
?- Pressure Rate: PN10/16
?- Hydraulic pressure test to EN12266? 1.5 x PN
?- Coating: Fusion bonded epoxy coating
?- Medium: Neutral water, Drinking water, Sewage
?- Temperature Range: 0℃ - 80℃
?- Bonnet and cover bolts are in A2-70 (AISI 304),
?- Coating - Electrostatically applied fusion bonded epoxy coating inside & outside for excellent corrosion resistance. Standard color RAL 5005, other colors upon request.
?- Designed and built to widely recognized standards.
?- 100% testing before packing and delivery
Storage & Maintenance
1. For long-term storage Y Strainer should be placed in a cool dry place, not allow to be stored or stacked in the open air.
2. Installation:
(1) Check whether the working condition is matched with the strainer pressure, temperature, corrosion resistance or not before installation;
(2) Attention should be paid that the flow direction of the medium should be in line with the arrow direction on the valve body when installing the strainer;
(3) Both sides of the flange connections must be parallel and coaxial;
(4) Check all the fasteners are loose, damaged or not;
(5) Fasten the flange bolts symmetrically and alternately;
(6) The daily sewage treatment can be done as long as removing the sewage bolts;
(7) After long-term use by extracting the sewage cover can do the filter for cleaning and remove the retained impurities on the screen.
Technical Data



Copyright ? IVALVE TECH. (TONGLING) CO.,LTD. All rights reserved.